Hammersmith Road, London W14 Property to rent - £6,667 pcm (£1,538 pw)
Hammersmith Road, London W14
£6,667
Watch a reward ad and go ad-free for the next 2 hours!
Description
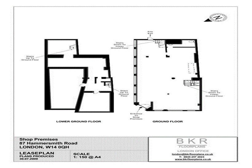
This is well established commercial property in the heard of Kensington olympia. The premises are located at the busy junction of the Hammersmith road/ Kensigton road with North End road in West London. The property is close to West Kensington underground station (District Line) which is within 5 minutes walk, and Barons Court underground station (Piccadilly line) is within 10 minutes walk. There are three residential floors above the ground floor which are not included in this commercial unit and have their own separate entrance.The property covers approximately 2,150 ft2 (200 m2), with the ground floor occupying approximately 1,450 ft2 (134.71 m2) and the lower ground floor occupying approximately 700 ft2 (65.03 m2). With ceiling heights of approximately 10.82 ft (3.3 m) and an approximately 65 ft (19.94 m) return frontage to North End Road and an approximately 26 ft (8 m) on Hammersmith Road.
Watch a reward ad and go ad-free for the next 2 hours!